Sửa trang
Mo tar


   


































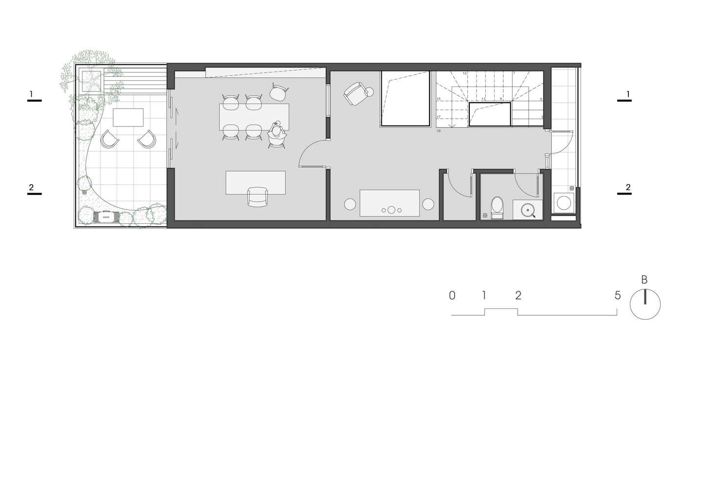
Công trình CHA HOUSE nằm trên khu đất 8.5x15 ở vị trí trung tâm ngã tư Đông Anh, nơi có mật độ xây dựng và mật độ giao thông cao. Căn nhà được thiết kế với mục đích kinh doanh kết hợp với gia đình 3 thế hệ. Một ý tưởng “vườn treo” trên khối ở được hình thành ngay từ khâu tư vấn thiết kế. Chức năng của khu vực này giúp ngăn ô nhiễm tiếng ồn, khói bụi từ bối cảnh vị trí khu đất, đồng thời tạo thành 1 lớp không gian mềm làm mờ đi sự thô kệch của đô thị. Khu vực vườn cây được đẩy sâu vào trong khối sinh hoạt để cảm nhận về sự thay đổi về thiên nhiên được gần gũi nhất. Khu vực sảnh thông tầng trong phòng khách cũng được khéo léo xoay chéo, để có thêm một góc nho nhỏ cho hai bé con vui chơi học tập, giúp cho sự tương tác của gia đình được cởi mở hơn. Tại vị trí này cũng được bố trí ô thông tầng để lấy ánh sáng gián tiếp và tạo lối cho thông gió tự nhiên. Bằng việc phân bổ các chức năng theo tỉ lệ phù hợp với nhu cầu sử dụng để có một khoảng ban công lùi 3m đủ cho khối sinh hoạt tách ra khỏi ô nhiễm đô thị. Kết hợp với đan cài thêm yếu tố cây xanh là cách mà chúng tôi cải thiện chất lượng sống của chủ nhà.

Địa điểm : Cao Lỗ, Đông Anh, Hà Nội
Diện Tích : 128 m2 (8.5 x 15)
DVTK & TC : Atelier 401 
Nhóm thiết kế : Phùng Tiến Đạt (Chủ trì) Doãn Anh Tú, Ngô Tuấn Anh, Đào Nguyên Giáp
Năm thiết kế : 2020
Năm hoàn thành : 2022

Nội dung sản phẩm
Sản phẩm khác
Khách hàng đánh giá (
0
)
Đánh Giá - Nhận Xét Từ Khách Hàng

5/5

0
Nhận xét
1

0%

2

0%

3

0%

4

0%

5

100%

Gửi nhận xét của bạn
Đánh giá của bạn về sản phẩm này:
1. Tên khách hàng
2. Email khách hàng
Nội dung nhận xét
Thêm hình sản phẩm nếu có (tối đa 5 hình):