.jpg)
.jpg)





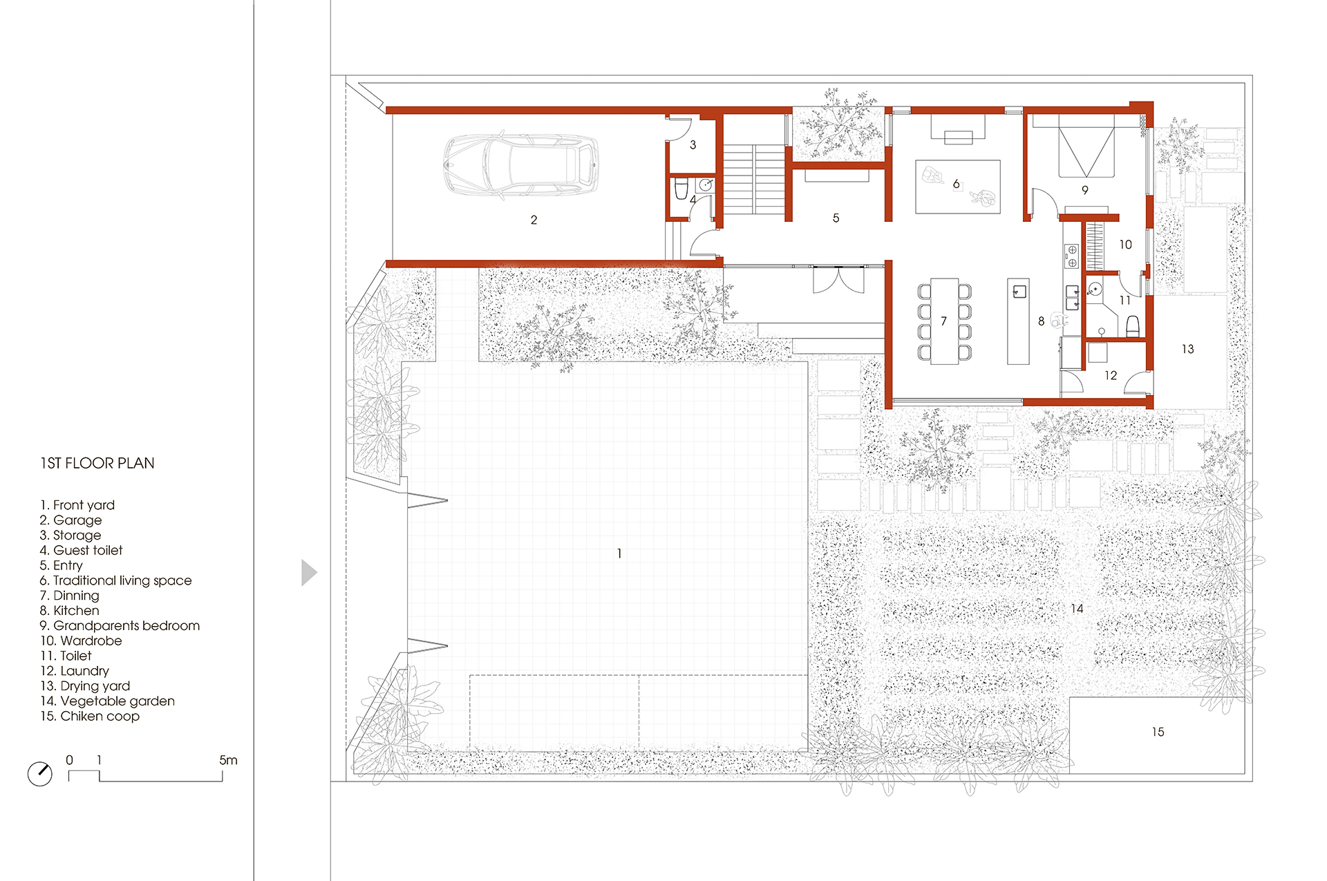
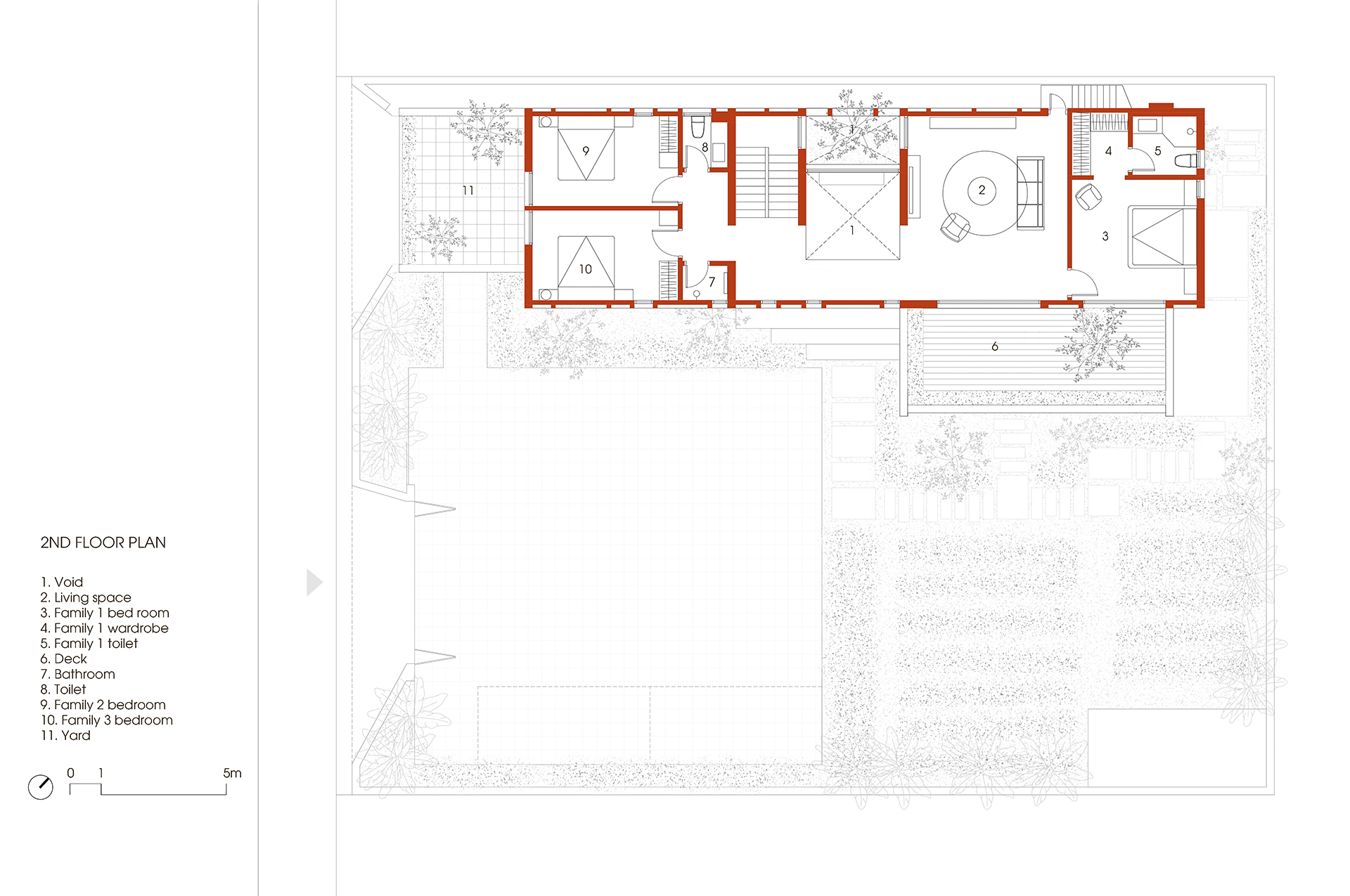
Công trình nằm nội khu Ecopark với mặt tiền và hệ kết cấu đã hoàn thiện sẵn. Gia đình chủ nhà gồm bố mẹ, 1 con trai và 1 con gái, một gia đình 2 thế hệ điển hình, mong muốn của chủ nhà là tạo ra một ngôi nhà có nhiều không gian chung để các thành viên trong gia đình có thể tương tác, sinh hoạt sau một ngày làm việc. Phương án chúng tôi đưa ra là đẩy trục giao thông đứng về phía cuối nhà, dồn diện tích lớn cho các không gian chính như phòng khách bếp, phòng ngủ master. Toàn bộ hệ thống thang bê tông cũ giữa nhà được phá bỏ, thay vào đó là hệ thang thép mỏng đặt phía cuối nhà để ánh sáng vào được sâu hơn. Vị trí sảnh thang được mở rộng cũng là không gian sinh hoạt nhỏ của gia đình, góc làm việc của bố, không gian chơi, đọc sách hay là tập đàn của các bé con.
Chủ đầu tư: Mr. Trường / Vị trí: Thuỷ Trúc, Ecopark, Hưng Yên / Kiến trúc sư: Đào Nguyên Giáp / Diện tích: 5x15 / Thiết kế: 2018.11 – 2019.4 / Thi công: 2019.4 – 2020.2 / Ảnh : anh Dương

5/5
0%
0%
0%
0%
100%